Vand vila single situata in Selimbar, in zona Unirii.
Adaugă la FavoriteDescriere
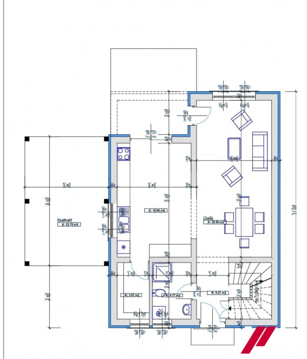
Vand vila single situata in Selimbar, in zona Unirii. Suprafata de teren pe care este construita vila este de 250mp,iar suprafata cosuprafata vilei este de 176mp, repartizata pe parter si etaj.
Vila are urmatoarea compartimentare: -Parterul are o suprafata de 88mp si este compus din :living,bucatarie,camara ,baie ,hol, terasa;
-Etajul cu o suprafata de 88mp este format din 3 dormitoare decomandate( din care un dormitor matrimonial cu baie proprie) ,hol, balcon, 2 bai.
Toate baile au geamuri de aerisire,iar in bucatarie este prevazuta in mijloc o insula pentru gatit. De asemenea vila este prevazuta cu carport. Vila se vinde la stadiu de alb ,avand incalzire centrala Bosh in pardoseala,peretii zugraviti in lavabila alba, instalatiile electrice si sanitare efectuate,sapa de nivelare in camere,termopane ,izolatie exterioara,gard etc .
Beneficiaza si de o copertina. Pret 279.000 Euro
Acest imobil este rezervat.
Vila are urmatoarea compartimentare: -Parterul are o suprafata de 88mp si este compus din :living,bucatarie,camara ,baie ,hol, terasa;
-Etajul cu o suprafata de 88mp este format din 3 dormitoare decomandate( din care un dormitor matrimonial cu baie proprie) ,hol, balcon, 2 bai.
Toate baile au geamuri de aerisire,iar in bucatarie este prevazuta in mijloc o insula pentru gatit. De asemenea vila este prevazuta cu carport. Vila se vinde la stadiu de alb ,avand incalzire centrala Bosh in pardoseala,peretii zugraviti in lavabila alba, instalatiile electrice si sanitare efectuate,sapa de nivelare in camere,termopane ,izolatie exterioara,gard etc .
Beneficiaza si de o copertina. Pret 279.000 Euro
Acest imobil este rezervat.
Locație
Selimbar, zona Unirii
Detalii anunț
ID Anunț: 3841
Afișări: 568
Expiră: 2029-08-10 20:03:28


